Design & Construction Plans
11/27/2020
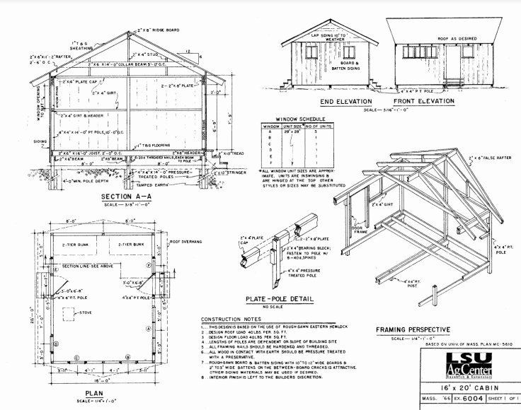
Official plans have been approved, and we are breaking ground on a new cabin starting next week.
11/21/2020
New construction plans attached.

11/27/2020
Official plans have been approved, and we are breaking ground on a new cabin starting next week.
11/21/2020
New construction plans attached.

All Rights Reserved | The Haven SC | A 501(c)(3) Non-Profit Organization
IRS 501(c)(3) Determination Letter
The Haven is deemed a charitable organization by the IRS code described in Section 501(c)(3). All donations are tax deductible to the extent allowable by law.